Racibórz /
śląskie
Monoprofilowe Centrum Symulacji Medycznej Państwowej Wyższej Szkoły Zawodowej w Raciborzu
0
Głosów
Inwestor
Państwowa Wyższa Szkoła Zawodowa w Raciborzu
Wykonawca
Budmed Przedsiębiorstwo Budowlano-Usługowo-Handlowe Sp. z o.o Zawada Książęca
Projektant
Pracownia usług budowlanych i projektowych Magdalena Sczyrba Racibórz
Zgłaszany obiekt został wybudowany w 1967 roku. Powstał jako aula połączona z Domem Studenta ówczesnego Studium Nauczycielskiego. W 2002 roku, kiedy to rozpoczęła działalność Państwowa Wyższa Szkoła Zawodowa w Raciborzu, między innymi przedmiotowy budynek stał się własnością Uczelni.
Do roku 2016 obiekt nie przeszedł gruntownego remontu ani modernizacji i funkcjonował jako aula, kiedy to decyzją (26.04.2016) Komendanta Powiatowego Państwowej Straży Pożarnej została wyłączona z użytkowania z powodu zagrożenia z uwagi na użycie, jako elementów wykończeniowych, materiałów łatwopalnych. W 2020 roku władze Uczelni podjęły decyzję o przeznaczeniu tego obiektu jako bazę pod przebudowę na Monoprofilowe Centrum Symulacji Medycznej dla kierunku pielęgniarstwa.
Kierunek pielęgniarstwo uruchomiony został w PWSZ w Raciborzu 1 października 2017 roku. Od tego czasu dokładano wszelkich starań, aby jakość kształcenia studentów była na jak najwyższym poziomie. Pielęgniarstwo jest kierunkiem studiów o profilu praktycznym, co oznacza, że ponad 50 % punktów ECTS musi być przyporządkowana zajęciom lub grupom zajęć kształtującym umiejętności praktyczne. W celu właściwej realizacji program studiów zgodnie z wymogami standardu kształcenia konieczna była budowa MCSM.
MCSM to nowoczesna baza dydaktyczna, przeznaczona do praktycznej nauki zawodu na kierunku pielęgniarstwo. W skład obiektu wchodzi 6 sal dydaktycznych, które są wyposażone w wysokiej jakości symulatory medyczne i trenażery. Daje to możliwość kształcenia studentów w warunkach zbliżonych do warunków szpitalnych. Aktualnie, jest to nieodzowna forma kształcenia umiejętności pielęgniarskich,
w sytuacji, gdy pacjenci szpitala muszą wyrazić świadomą zgodę na przeprowadzane procedury medycznej. Coraz większa liczba pacjentów nie wyraża zgody, żeby czynności medyczne wykonywali studenci, dlatego MCSM jest konieczną oraz uznaną w Polsce i na świecie metodą praktycznej nauki zawodu.
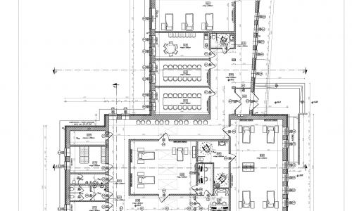
Każda z 6 sal wchodząca w skład MCSM pełni inną funkcję.
Sala wysokiej wierności jest odzwierciedleniem szpitala, tu studenci, będą realizowali scenariusze symulacyjne wysokiej wierności w warunkach fizycznego i emocjonalnego realizmu. W tej sali nauka jest oparta na zasadach: wierności symulatorów, wierności miejsca oraz wierności psychologicznej. Znajdują
się tutaj zaawansowane symulatory pozwalające na odwzorowanie stanu pacjenta, zgodnego z jednostką chorobową i aktualnym stanem zdrowia, które pozwalają przy tym na zmianę parametrów życiowych adekwatnie do wprowadzanych przez studentów procedur medycznych. Czynności wykonywane przez studentów są nagrywane, a następnie w sali debriefingu oglądane i analizowane. Każdy student ma możliwość obejrzenia filmu nagranego podczas wykonywania zleconych przez nauczyciela zadań i określenia czy podjęte przez niego działania są zgodne z obowiązującymi standardami. Jest to również miejsce, gdzie studenci uczą się prawidłowej komunikacji z pacjentem oraz współpracy w zespole terapeutycznym. W pomieszczeniu tym znajdują się symulatory odzwierciedlające pacjenta dorosłego, dziecko i niemowlaka. Przy każdym z trzech stanowisk znajdują się panele medyczne umożliwiające podłączenie respiratorów, ssaków i innych urządzeń wykorzystujących gazy medyczne lub podciśnienie. Ze względów bezpieczeństwa zamiast prawdziwych gazów medycznych tłoczone jest sprężone powietrze. W sali tej zainstalowane są trzy kamery cyfrowe wysokiej jakości z możliwością zmiany obszaru nagrywania oraz zoom-em optycznym, bowiem całość zajęć i ćwiczeń – jak już powyżej wspomniano - jest nagrywana. Nad przebiegiem zajęć, rejestracją ich z kamer, rejestrowaniem parametrów życiowych pacjenta, podczas symulacji czuwają dydaktycy i technicy z pokoju kontrolnego, umiejscowionego za lustrem weneckim. W taki sposób zarejestrowany materiał wideo jest nieodzownym i wręcz doskonałym materiałem do dalszej pracy ze studentami w sali debrifingu wyposażonej w duży ekran multimedialny, na którym prowadzący prezentując nagranie i omawia poprawność przeprowadzonych ćwiczeń lub popełnione błędy.
Na sali umiejętności pielęgniarskich, podczas realizowania scenariuszy pośredniej i niskiej wierności studenci zdobywają wiedzę i kompetencje z zakresu pielęgniarstwa w różnych jednostkach chorobowych – począwszy od pielęgniarstwa zachowawczego, onkologicznego, chirurgicznego, opieki paliatywnej, traumatologii i ortopedii.
Sala umiejętności technicznych to miejsce, gdzie studenci rozpoczynają naukę zawodu, tutaj uczą się techniki wykonywania podstawowych czynności pielęgniarskich takich jak: zakładanie wkłuć, podłączania wlewów dożylnych, pobierania krwi, cewnikowania, podawania leków, prowadzenia dokumentacji medycznej. Zajęcia na tej Sali cechują się dużą powtarzalnością, co daje studentom możliwość kompleksowego opanowania techniki wykonywania poszczególnych procedur.
Sale ALS i BLS to dwie sale służące do nauki podstawowych i zaawansowanych czynności ratujących życie. Skomputeryzowane symulatory i trenażery umożliwią naukę rozpoznawania stanów zagrożenia życia, prawidłowego udrażniania dróg oddechowych w sposób bezprzyrządowy i przyrządowy (np. intubacja), wentylację pacjenta oraz prawidłowego uciskania klatki piersiowej podczas wykonywania zewnętrznego masażu serca. Dzięki oprogramowaniu symulatorów możliwy jest pomiar głębokości ucisków klatki piersiowej z zaznaczeniem zbyt płytkich lub zbyt głębokich uciśnięć, relaksacji klatki piersiowej, prawidłowego miejsca ułożenia rąk podczas reanimacji, częstotliwości ucisków, pojemności wdmuchiwanego powietrza podczas wentylacji. Studenci podczas tak prowadzonych zajęć mogą bezpośrednio kontrolować swoje działania i korygować błędy.
Sala OSCE to sala egzaminacyjna, na której odbywają się Obiektywne Strukturalne Egzaminy Kliniczne (Objective Structured Clinical Examination). Egzamin ten jest formą sprawdzania umiejętności praktycznych. Podczas egzaminu studenci otrzymują do wykonania jednakowe zadania w tym samym czasie na różnych stanowiskach egzaminacyjnych i w identycznych przedziałach czasowych zmieniają stanowiska egzaminacyjne. Ocena studentów odbywa się według identycznych kryteriów na podstawie check-list, co umożliwia obiektywne i sprawiedliwe sprawdzenie umiejętności zdobytych podczas zajęć.
Budowa Centrum pozwoliła kompleksowo zrewitalizować nieużytkowany obiekt. Wykonano kompleksową termomodernizację i izolację fundamentów oraz posadzek, całkowicie nowe instalacje elektryczna z odgromową, kanalizacji sanitarnej, kanalizacji deszczowej, wody użytkowej, hydrantowa, centralnego ogrzewania, alarmowa, monitoringu wizyjnego CCTV, teleinformatyczna, sprężonego powietrza i podciśnienia, wentylacji mechanicznej z rekuperacją oraz klimatyzacyjna. Wymieniona została stolarka okienna i drzwiowa. Wykonano nowe pokrycie dachowe wraz z termomodernizacją, w tym także świetlik dachowy. Dostosowano również do potrzeb osób z niepełnosprawnościami w myśl zasad dostępności bez barier.
Gruntowna przebudowa spowodowała, że obiekt zyskał zupełnie nowe, a przede wszystkim nowoczesne oblicze i funkcje.
Do roku 2016 obiekt nie przeszedł gruntownego remontu ani modernizacji i funkcjonował jako aula, kiedy to decyzją (26.04.2016) Komendanta Powiatowego Państwowej Straży Pożarnej została wyłączona z użytkowania z powodu zagrożenia z uwagi na użycie, jako elementów wykończeniowych, materiałów łatwopalnych. W 2020 roku władze Uczelni podjęły decyzję o przeznaczeniu tego obiektu jako bazę pod przebudowę na Monoprofilowe Centrum Symulacji Medycznej dla kierunku pielęgniarstwa.
Kierunek pielęgniarstwo uruchomiony został w PWSZ w Raciborzu 1 października 2017 roku. Od tego czasu dokładano wszelkich starań, aby jakość kształcenia studentów była na jak najwyższym poziomie. Pielęgniarstwo jest kierunkiem studiów o profilu praktycznym, co oznacza, że ponad 50 % punktów ECTS musi być przyporządkowana zajęciom lub grupom zajęć kształtującym umiejętności praktyczne. W celu właściwej realizacji program studiów zgodnie z wymogami standardu kształcenia konieczna była budowa MCSM.
MCSM to nowoczesna baza dydaktyczna, przeznaczona do praktycznej nauki zawodu na kierunku pielęgniarstwo. W skład obiektu wchodzi 6 sal dydaktycznych, które są wyposażone w wysokiej jakości symulatory medyczne i trenażery. Daje to możliwość kształcenia studentów w warunkach zbliżonych do warunków szpitalnych. Aktualnie, jest to nieodzowna forma kształcenia umiejętności pielęgniarskich,
w sytuacji, gdy pacjenci szpitala muszą wyrazić świadomą zgodę na przeprowadzane procedury medycznej. Coraz większa liczba pacjentów nie wyraża zgody, żeby czynności medyczne wykonywali studenci, dlatego MCSM jest konieczną oraz uznaną w Polsce i na świecie metodą praktycznej nauki zawodu.
Każda z 6 sal wchodząca w skład MCSM pełni inną funkcję.
Sala wysokiej wierności jest odzwierciedleniem szpitala, tu studenci, będą realizowali scenariusze symulacyjne wysokiej wierności w warunkach fizycznego i emocjonalnego realizmu. W tej sali nauka jest oparta na zasadach: wierności symulatorów, wierności miejsca oraz wierności psychologicznej. Znajdują
się tutaj zaawansowane symulatory pozwalające na odwzorowanie stanu pacjenta, zgodnego z jednostką chorobową i aktualnym stanem zdrowia, które pozwalają przy tym na zmianę parametrów życiowych adekwatnie do wprowadzanych przez studentów procedur medycznych. Czynności wykonywane przez studentów są nagrywane, a następnie w sali debriefingu oglądane i analizowane. Każdy student ma możliwość obejrzenia filmu nagranego podczas wykonywania zleconych przez nauczyciela zadań i określenia czy podjęte przez niego działania są zgodne z obowiązującymi standardami. Jest to również miejsce, gdzie studenci uczą się prawidłowej komunikacji z pacjentem oraz współpracy w zespole terapeutycznym. W pomieszczeniu tym znajdują się symulatory odzwierciedlające pacjenta dorosłego, dziecko i niemowlaka. Przy każdym z trzech stanowisk znajdują się panele medyczne umożliwiające podłączenie respiratorów, ssaków i innych urządzeń wykorzystujących gazy medyczne lub podciśnienie. Ze względów bezpieczeństwa zamiast prawdziwych gazów medycznych tłoczone jest sprężone powietrze. W sali tej zainstalowane są trzy kamery cyfrowe wysokiej jakości z możliwością zmiany obszaru nagrywania oraz zoom-em optycznym, bowiem całość zajęć i ćwiczeń – jak już powyżej wspomniano - jest nagrywana. Nad przebiegiem zajęć, rejestracją ich z kamer, rejestrowaniem parametrów życiowych pacjenta, podczas symulacji czuwają dydaktycy i technicy z pokoju kontrolnego, umiejscowionego za lustrem weneckim. W taki sposób zarejestrowany materiał wideo jest nieodzownym i wręcz doskonałym materiałem do dalszej pracy ze studentami w sali debrifingu wyposażonej w duży ekran multimedialny, na którym prowadzący prezentując nagranie i omawia poprawność przeprowadzonych ćwiczeń lub popełnione błędy.
Na sali umiejętności pielęgniarskich, podczas realizowania scenariuszy pośredniej i niskiej wierności studenci zdobywają wiedzę i kompetencje z zakresu pielęgniarstwa w różnych jednostkach chorobowych – począwszy od pielęgniarstwa zachowawczego, onkologicznego, chirurgicznego, opieki paliatywnej, traumatologii i ortopedii.
Sala umiejętności technicznych to miejsce, gdzie studenci rozpoczynają naukę zawodu, tutaj uczą się techniki wykonywania podstawowych czynności pielęgniarskich takich jak: zakładanie wkłuć, podłączania wlewów dożylnych, pobierania krwi, cewnikowania, podawania leków, prowadzenia dokumentacji medycznej. Zajęcia na tej Sali cechują się dużą powtarzalnością, co daje studentom możliwość kompleksowego opanowania techniki wykonywania poszczególnych procedur.
Sale ALS i BLS to dwie sale służące do nauki podstawowych i zaawansowanych czynności ratujących życie. Skomputeryzowane symulatory i trenażery umożliwią naukę rozpoznawania stanów zagrożenia życia, prawidłowego udrażniania dróg oddechowych w sposób bezprzyrządowy i przyrządowy (np. intubacja), wentylację pacjenta oraz prawidłowego uciskania klatki piersiowej podczas wykonywania zewnętrznego masażu serca. Dzięki oprogramowaniu symulatorów możliwy jest pomiar głębokości ucisków klatki piersiowej z zaznaczeniem zbyt płytkich lub zbyt głębokich uciśnięć, relaksacji klatki piersiowej, prawidłowego miejsca ułożenia rąk podczas reanimacji, częstotliwości ucisków, pojemności wdmuchiwanego powietrza podczas wentylacji. Studenci podczas tak prowadzonych zajęć mogą bezpośrednio kontrolować swoje działania i korygować błędy.
Sala OSCE to sala egzaminacyjna, na której odbywają się Obiektywne Strukturalne Egzaminy Kliniczne (Objective Structured Clinical Examination). Egzamin ten jest formą sprawdzania umiejętności praktycznych. Podczas egzaminu studenci otrzymują do wykonania jednakowe zadania w tym samym czasie na różnych stanowiskach egzaminacyjnych i w identycznych przedziałach czasowych zmieniają stanowiska egzaminacyjne. Ocena studentów odbywa się według identycznych kryteriów na podstawie check-list, co umożliwia obiektywne i sprawiedliwe sprawdzenie umiejętności zdobytych podczas zajęć.
Budowa Centrum pozwoliła kompleksowo zrewitalizować nieużytkowany obiekt. Wykonano kompleksową termomodernizację i izolację fundamentów oraz posadzek, całkowicie nowe instalacje elektryczna z odgromową, kanalizacji sanitarnej, kanalizacji deszczowej, wody użytkowej, hydrantowa, centralnego ogrzewania, alarmowa, monitoringu wizyjnego CCTV, teleinformatyczna, sprężonego powietrza i podciśnienia, wentylacji mechanicznej z rekuperacją oraz klimatyzacyjna. Wymieniona została stolarka okienna i drzwiowa. Wykonano nowe pokrycie dachowe wraz z termomodernizacją, w tym także świetlik dachowy. Dostosowano również do potrzeb osób z niepełnosprawnościami w myśl zasad dostępności bez barier.
Gruntowna przebudowa spowodowała, że obiekt zyskał zupełnie nowe, a przede wszystkim nowoczesne oblicze i funkcje.
50.085421499522, 18.204367160797
